www.activeradiator.com
Call today to Order
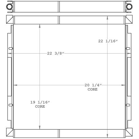
290222 - Case 580 Series Hydraulic / Transmission Oil Cooler

Special Notes
Options / Pricing / Availability
To see availability click on the variation part number
Core Dimensions
Height:
19.0625"
Width:
20.25"
Depth:
1.9375"
Overall Height:
22.0625"
Description
Product Type:
Combo Unit
Filler Neck:
None
OE Numbers
290222
290222P
87441876
MN02400043913C
290222P
87441876
MN02400043913C