www.activeradiator.com
Call today to Order
290110 - Quincy Screw Compressor

Special Notes
Charge Air Cooler, Oil Cooler,
					Options / Pricing / Availability
					To see availability click on the variation part number
				
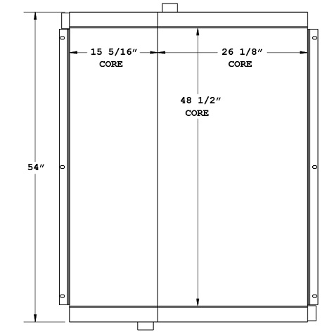
Core Dimensions
Height:
48.5"
				Width:
41.5"
				Depth:
3.5"
				Overall Height:
54"
			Description
Product Type:
Combo Unit
Orientation:
Downflow
Filler Neck:
None
Inlet:
1 7/8-12 ORB, 2" NPT" (Top)
Outlet:
1 7/8-12 ORB, 2" NPT" (Bottom)
Oil Cooler:
None
OE Numbers
						290110
290110ED
117306
NS60N
2012102023
129190
129190250
6290022
			290110ED
117306
NS60N
2012102023
129190
129190250
6290022