www.activeradiator.com
Call today to Order
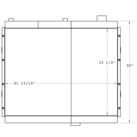
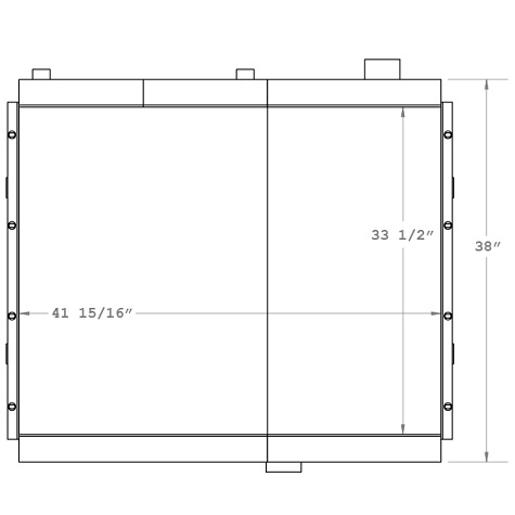
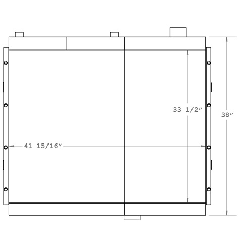
290005 - Ingersoll Rand Combination Cooler

Special Notes
Charge Air Cooler, Oil Cooler,
Options / Pricing / Availability
To see availability click on the variation part number
Core Dimensions
Height:
32.5"
Width:
41.9375"
Depth:
3.5"
Overall Height:
38"
Description
Product Type:
Combo Unit
OE Numbers
290005
BT5115
BT5115