www.activeradiator.com
Call today to Order
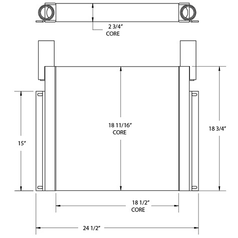
270813 - Frac Pump Oil Cooler

Special Notes
Options / Pricing / Availability
To see availability click on the variation part number
Core Dimensions
Height:
18.5"
Width:
18.672"
Depth:
2.75"
Overall Height:
24.5"
Description
Product Type:
Oil Cooler
OE Numbers
270813
BT5128
BT5128